












Scorpion II® TMA Truck Mounted Attenuator
Model C TL-3
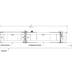
The Scorpion TMA Model C folds up and over the bed of flat bed, stake bed, or dump trucks. The Model C with its compact design and balanced weight distribution makes it ideal for high-speed travel. The Scorpion TMA Model C provides TL-3 impact protection. Side mounts are also available.
- Weight
- 1,975 lbs (900kg)
- Length
- Travel/Storage 2' 5" (.74 m)
- Deployed 12' 10" (3.93 m)
- Width
- 8' (2.45 m)
- Height
- Travel/Storage 10' 6" (3.05 m)
- Deployed 12" ± 1" (305 mm ± 24.4 mm)
Specification
The Scorpion II Truck Mounted Attenuator (TMA) is a mobile crash cushion attached to the rear of a support vehicle's frame. The TMA may be used on moving shadow trucks, stationary block vehicles, or advanced warning vehicles upstream of a moving or stationary operation. The TMA is tested, passed and eligible to MASH TL-3 (62.5 mph / 100 kph). The TMA can be used on support vehicles with a minimum actual/curb weight of 15,000 lbs (6,804 kg) with no upper weight limit (infinite weight). Lighting consists of LED brake, directional, signal and running lights for enhancement of advanced warning to drivers. The TL-3 TMA has an overall dimension of 12.94 ft. (3.9 m) × 8.0 ft (2.4 m) × 2.0 ft (0.6 m) and has a ground clearance of 12" ± 1" (305 mm ± 25.4 mm) when deployed in the horizontal operating position. The Scorpion II TMA consists of three (3) main components: Strut, Cartridge, and backup/diaphragm frames. The Strut and Cartridge are the energy attenuation components. The Strut is positioned nearest to the support vehicle and the Cartridge is positioned furthest away from the support vehicle. The Cartridge is typically the first component impacted by an errant vehicle. The Strut consists of four (4) outboard convex aluminum tubes (two on each side) forming an aluminum structural weldment. The aluminum structural weldments bolt to a structural steel diaphragm/backup frame. The TMA can be rotated in a double 90° fold position over the support vehicles bed with a stored height of less than 12' 5" (3.8 m). An optional hydraulic powered vertical lift can be utilized with the TMA to deploy a display panel when the TMA is lowered into the use position. The vertical lift is powered by the same on-board hydraulic system that rotates the TMA into the travel/storage and deployed positions. The vertical lift is sequenced to raise and lower a panel for displaying advanced messages, directional indicators, or other notifications.
Crash Protection
Choose options



